A VENDRE APPARTEMENT CAEN HAIE VIGNE
Local en vente
Informations du bien
Référence : 85417655
Superficie du bien : 67.1 m²
Zone géographique : Caen centre
Prix du bien : 205 900 €
A VENDRE APPARTEMENT CAEN HAIE VIGNE
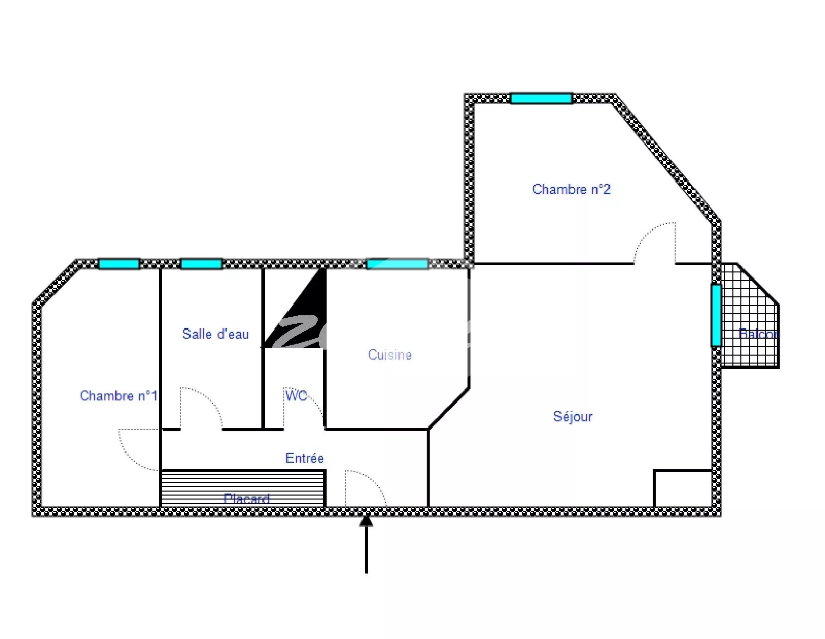
Appartement 3 pièces – Caen Haie Vigné – Exclusivité
En exclusivité, découvrez ce bel appartement de 67,1 m² situé dans le quartier recherché de la Haie Vigné à Caen. Bien agencé, il se compose de trois pièces principales, dont deux chambres, et conviendra parfaitement à un couple ou à une petite famille.
Le séjour, agréable et fonctionnel, s’ouvre sur un balcon offrant une vue dégagée, idéal pour profiter de moments de détente en extérieur. L’appartement bénéficie de prestations modernes telles que le double vitrage pour un confort thermique optimal, la fibre optique pour un accès internet haut débit, ainsi qu’un digicode assurant une sécurité renforcée.
Un box électrifié ainsi qu’une cave attenante complètent ce bien. La résidence, équipée d’un ascenseur, d’un interphone et d’un système de vidéosurveillance, offre un cadre de vie calme, sécurisé et confortable.
Idéalement situé et répondant aux exigences actuelles en matière de confort et de sécurité, cet appartement constitue une opportunité rare et un excellent investissement à Caen.
Appartement 3 pièces – Caen Haie Vigné – Exclusivité
En exclusivité, découvrez ce bel appartement de 67,1 m² situé dans le quartier recherché de la Haie Vigné à Caen. Bien agencé, il se compose de trois pièces principales, dont deux chambres, et conviendra parfaitement à un couple ou à une petite famille.
Le séjour, agréable et fonctionnel, s’ouvre sur un balcon offrant une vue dégagée, idéal pour profiter de moments de détente en extérieur. L’appartement bénéficie de prestations modernes telles que le double vitrage pour un confort thermique optimal, la fibre optique pour un accès internet haut débit, ainsi qu’un digicode assurant une sécurité renforcée.
Un box électrifié ainsi qu’une cave attenante complètent ce bien. La résidence, équipée d’un ascenseur, d’un interphone et d’un système de vidéosurveillance, offre un cadre de vie calme, sécurisé et confortable.
Idéalement situé et répondant aux exigences actuelles en matière de confort et de sécurité, cet appartement constitue une opportunité rare et un excellent investissement à Caen.
Vous êtes intéressé par ce bien ?
Contactez nousInformations complémentaires
Nombre de pièces : 3
Type de chauffage : 1









